Crafting Your Personal Sanctuary: Exploring the World of Master Bathroom Layouts
The master bathroom: it’s more than just a place to brush your teeth and shower. It’s a sanctuary, a retreat, a personal oasis where you can unwind, rejuvenate, and prepare for the day ahead. And just like any sanctuary, its design and layout are crucial to creating the right atmosphere. Let’s dive deep into the world of master bathroom layouts, exploring the various options, considerations, and design principles that will help you craft the perfect space for your needs and desires.

Think about it – your master bathroom is often the first place you visit in the morning and the last place you visit before bed. It sets the tone for your day and provides a space for relaxation at night. A well-designed bathroom can significantly improve your quality of life, offering a sense of calm, organization, and luxury. Conversely, a poorly planned bathroom can be a source of frustration and stress. So, how do you avoid the latter and achieve the former? It all starts with understanding the key elements of a master bathroom layout.

Understanding the Core Components: What Makes a Master Bathroom ‘Master’?
Before we delve into specific layouts, let’s define what typically constitutes a master bathroom. It’s usually, but not always, attached to the master bedroom and designed for the primary occupants of the house. Key features often include:

- Double Sinks: A must-have for many couples, double sinks eliminate the morning rush and provide ample personal space.
- Separate Shower and Tub: While not always possible in smaller spaces, separating the shower and tub creates a more luxurious and functional experience.
- Toilet Compartment: For added privacy and hygiene, a separate toilet compartment or water closet is highly desirable.
- Ample Storage: Plenty of storage for toiletries, towels, and other essentials is crucial to maintaining a clutter-free and organized space.
- Sufficient Counter Space: Counter space is precious in a bathroom. Ensure you have enough for your daily routines and personal items.
These are the core elements, but a master bathroom can also include other features like a vanity area, a dressing room, or even a small seating area. The possibilities are endless, limited only by your space, budget, and imagination.

Exploring Popular Master Bathroom Layouts: Finding the Perfect Fit
Now that we know the key components, let’s explore some popular master bathroom layouts. Each layout offers different advantages and disadvantages, depending on the size and shape of your space.

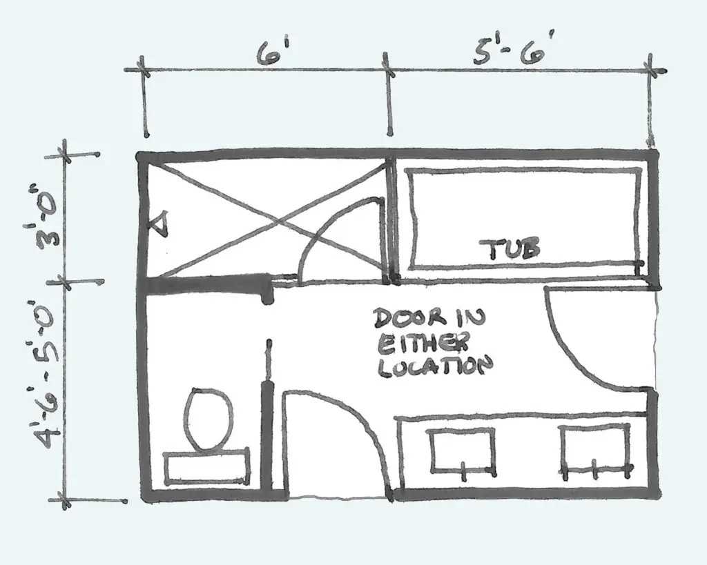
The Linear Layout: Efficiency and Simplicity
The linear layout, also known as the single-wall layout, is one of the most common and efficient designs, especially for smaller bathrooms. All the fixtures – sinks, toilet, shower, and tub – are arranged along a single wall. This layout is ideal for narrow spaces and can be easily adapted to different styles.

Advantages of the Linear Layout:
- Space-Saving: Maximizes space in narrow bathrooms.
- Cost-Effective: Simplifies plumbing and construction.
- Easy to Clean: Straightforward design makes cleaning easier.
Disadvantages of the Linear Layout:
- Limited Privacy: May lack privacy, especially if the toilet is not separated.
- Can Feel Cramped: Can feel cramped if not designed carefully, especially with multiple users.
Tips for the Linear Layout: Use a glass shower enclosure to create a sense of openness. Incorporate floating vanities to maximize floor space. Consider a pocket door to save space and improve traffic flow.

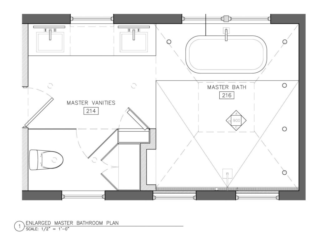
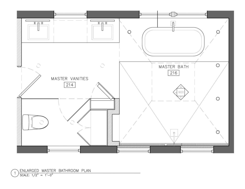
The L-Shaped Layout: Zoning and Separation
The L-shaped layout is another popular choice, particularly for medium-sized bathrooms. It involves arranging the fixtures along two adjacent walls, creating distinct zones within the bathroom. For example, you might place the sinks and vanity on one wall and the shower and tub on the other.
Advantages of the L-Shaped Layout:
- Zoning: Creates distinct zones for different activities, such as grooming and bathing.
- Improved Privacy: Offers more privacy compared to the linear layout.
- Flexibility: Provides more flexibility in terms of fixture placement.
Disadvantages of the L-Shaped Layout:
- Requires More Space: Needs more space than the linear layout.
- Can Feel Disconnected: Can feel disconnected if not designed carefully.
Tips for the L-Shaped Layout: Use a rug to define the different zones. Install a focal point, such as a freestanding tub, to draw the eye. Ensure adequate lighting in each zone.

The U-Shaped Layout: Maximum Functionality and Storage
The U-shaped layout is ideal for larger bathrooms where you want to maximize functionality and storage. It involves arranging the fixtures along three walls, creating a U-shaped configuration. This layout provides ample counter space, storage options, and distinct zones for various activities.
Advantages of the U-Shaped Layout:
- Ample Storage: Provides maximum storage space.
- Distinct Zones: Creates well-defined zones for different activities.
- Enhanced Functionality: Offers maximum functionality with ample counter space and storage.
Disadvantages of the U-Shaped Layout:
- Requires Significant Space: Needs a large bathroom to work effectively.
- Can Feel Enclosed: Can feel enclosed if not designed carefully.
Tips for the U-Shaped Layout: Use light colors and reflective surfaces to create a sense of spaciousness. Incorporate a large mirror to visually expand the space. Ensure adequate lighting to prevent the space from feeling too dark.

The Island Layout: Luxury and Sophistication
The island layout is the epitome of luxury and sophistication. It involves placing a central island in the middle of the bathroom, typically used for additional counter space, storage, or even a seating area. This layout is best suited for very large bathrooms and creates a focal point that exudes elegance.
Advantages of the Island Layout:
- Luxurious Feel: Creates a luxurious and spa-like atmosphere.
- Additional Counter Space: Provides extra counter space for grooming and storage.
- Focal Point: Creates a stunning focal point in the bathroom.
Disadvantages of the Island Layout:
- Requires Very Large Space: Needs a very large bathroom to accommodate the island.
- Expensive: Can be expensive to implement due to plumbing and construction costs.
- Can Disrupt Traffic Flow: Can disrupt traffic flow if not designed carefully.
Tips for the Island Layout: Consider adding a small sink to the island for added convenience. Incorporate lighting under the island to create a dramatic effect. Use high-quality materials and finishes to enhance the luxurious feel.

The Wet Room Layout: Modern and Minimalist
The wet room layout is a modern and minimalist design that eliminates the need for a separate shower enclosure. The entire bathroom floor is waterproofed and slightly sloped towards a drain, allowing the shower to be integrated seamlessly into the space. This layout is ideal for smaller bathrooms or for those who want a clean and contemporary look.
Advantages of the Wet Room Layout:
- Space-Saving: Eliminates the need for a separate shower enclosure, saving space.
- Modern Aesthetic: Creates a clean and contemporary look.
- Easy to Clean: Easy to clean and maintain due to the waterproofed floor.
Disadvantages of the Wet Room Layout:
- Requires Waterproofing: Requires extensive waterproofing to prevent water damage.
- Can Feel Cold: Can feel cold and drafty, especially in colder climates.
- Potential for Splashing: Requires careful planning to prevent water from splashing outside the designated shower area.
Tips for the Wet Room Layout: Install a heated floor to combat the cold. Use a glass shower screen to contain the water. Ensure proper ventilation to prevent moisture buildup.

Essential Considerations for Planning Your Master Bathroom Layout
Choosing the right layout is just the first step. There are several other essential considerations that you need to keep in mind when planning your master bathroom:

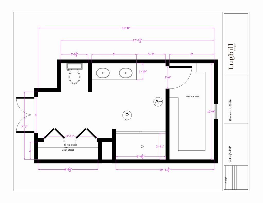
Space and Dimensions: Measuring Matters
Accurate measurements are crucial. Before you even start thinking about layouts, meticulously measure your bathroom space. Note the location of existing plumbing and electrical outlets, as these will influence your design options. Consider the ceiling height, as this can affect the placement of showerheads and lighting fixtures. A good rule of thumb is to have at least 30 inches of clear space in front of each fixture (toilet, sink, shower, tub) and at least 24 inches between the center of the toilet and any adjacent wall or fixture. Remember to account for door swing and consider using a pocket door if space is tight.

Plumbing and Electrical: The Unseen Infrastructure
Relocating plumbing and electrical lines can be expensive and time-consuming, so it’s best to work with the existing infrastructure as much as possible. If you are planning to move fixtures, consult with a licensed plumber and electrician to ensure that the changes are feasible and comply with local building codes. Consider the placement of water heaters and drainage systems, as these can impact the location of your shower and tub. Also, think about the placement of electrical outlets for hair dryers, curling irons, and other personal care appliances. Ensure that all electrical outlets near water sources are GFCI protected.

Ventilation: Preventing Moisture and Mold
Proper ventilation is essential for preventing moisture buildup, mold growth, and unpleasant odors. Install a high-quality exhaust fan that is appropriately sized for your bathroom. The fan should be vented to the outside, not into the attic or crawl space. Consider a fan with a humidity sensor that automatically turns on when moisture levels rise. Natural ventilation, such as a window, is also a great option, but it may not be sufficient on its own. Regularly clean the exhaust fan to ensure that it is functioning properly.

Lighting: Creating the Right Ambiance
Lighting plays a crucial role in the overall ambiance of your master bathroom. Incorporate a variety of lighting types, including ambient lighting, task lighting, and accent lighting. Ambient lighting provides overall illumination for the room. Task lighting is used for specific activities, such as shaving or applying makeup. Accent lighting highlights architectural features or decorative elements. Consider using dimmers to adjust the lighting levels to suit your mood. Choose light fixtures that are appropriate for the bathroom environment and that comply with safety regulations.

Storage: Keeping Things Organized
Ample storage is essential for keeping your master bathroom organized and clutter-free. Incorporate a variety of storage solutions, such as vanities with drawers and cabinets, shelving units, and medicine cabinets. Consider using vertical space to maximize storage. Over-the-toilet storage units and wall-mounted shelves are great options for smaller bathrooms. Don’t forget to include storage for towels, toiletries, and cleaning supplies. A well-organized bathroom will not only look better but also function more efficiently.

Accessibility: Planning for the Future
Even if you don’t currently have any mobility issues, it’s wise to consider accessibility when planning your master bathroom layout. Incorporating features such as grab bars, a curbless shower, and a comfort-height toilet can make your bathroom safer and more comfortable for people of all ages and abilities. A wider doorway can accommodate wheelchairs or walkers. Lever-style handles on faucets and doors are easier to operate than traditional knobs. Planning for accessibility now can prevent costly renovations in the future.

Style and Aesthetics: Creating Your Personal Oasis
Finally, consider your personal style and preferences when designing your master bathroom. Choose colors, materials, and finishes that reflect your taste and create the desired atmosphere. Whether you prefer a modern and minimalist aesthetic, a traditional and classic look, or a spa-like retreat, there are countless design options to choose from. Don’t be afraid to experiment with different textures, patterns, and accessories to create a unique and personalized space. Consider the overall design of your home and choose a style that complements the existing architecture and decor.

Bringing it All Together: A Step-by-Step Guide to Planning Your Master Bathroom Layout
Now that we’ve covered the essential considerations, let’s outline a step-by-step guide to planning your master bathroom layout:

- Assess Your Needs and Priorities: What are your must-have features? What is your budget? What is your personal style?
- Measure Your Space: Accurately measure your bathroom and note the location of existing plumbing and electrical lines.
- Choose a Layout: Select a layout that is appropriate for the size and shape of your space and that meets your needs.
- Create a Floor Plan: Draw a floor plan of your bathroom, showing the location of all the fixtures and features.
- Consider Plumbing and Electrical: Plan the location of plumbing and electrical lines, taking into account any existing infrastructure.
- Plan for Ventilation and Lighting: Ensure adequate ventilation and lighting for the space.
- Incorporate Storage: Include ample storage solutions to keep the bathroom organized.
- Consider Accessibility: Incorporate accessibility features to make the bathroom safer and more comfortable.
- Choose Materials and Finishes: Select materials and finishes that reflect your personal style and create the desired atmosphere.
- Consult with Professionals: Consult with a licensed plumber, electrician, and contractor to ensure that your plans are feasible and comply with local building codes.
The Final Touches: Elevating Your Master Bathroom Experience
Once your master bathroom layout is finalized and construction is underway, it’s time to think about the final touches that will elevate your experience and create a truly luxurious and relaxing space:

- High-Quality Fixtures: Invest in high-quality faucets, showerheads, and toilets that are durable and stylish.
- Luxurious Towels and Linens: Choose soft and absorbent towels and linens to create a spa-like atmosphere.
- Comfortable Bath Mat: Select a comfortable and absorbent bath mat to keep your feet warm and dry.
- Aromatherapy: Use essential oils, diffusers, or scented candles to create a relaxing and inviting atmosphere.
- Plants: Add plants to bring life and freshness to the space.
- Artwork: Hang artwork that you enjoy to personalize the space.
- Sound System: Install a sound system to listen to music or podcasts while you relax in the tub or shower.
In Conclusion: Your Master Bathroom, Your Sanctuary
Designing a master bathroom is a deeply personal endeavor. It’s about creating a space that meets your individual needs, reflects your personal style, and provides a sanctuary where you can relax, rejuvenate, and prepare for the day ahead. By carefully considering the various layouts, essential considerations, and final touches, you can create a master bathroom that is not only functional and beautiful but also a true reflection of you.

So, take your time, do your research, and don’t be afraid to experiment. With a little planning and effort, you can transform your master bathroom into the dream oasis you’ve always wanted.

Nimila